我要发布房源
定房汇 >  二手房  > 定州市区二手房  > 西城区二手房  > 房源详细

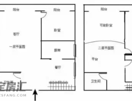
领秀城北区 跃层毛坯 单价7500 本2

绿化率高 交通便捷 学区房 配套齐全 满两年 随时看房 有电梯
2人浏览 举报 关注房源
< >
110
7319元/平米
4室3厅3卫
低层/共12层
150.29平米
住宅
朝南
毛坯房
  • 编号202105071725
  • 挂牌2021.05.07
  • 电梯有电梯
  • 产权70年
  • 区域定州市区 - 西城区
  • 小区 领秀城
地址 领秀城
赵彩丽
河北诚达行房地产经纪有限公司
我的门店
入驻已过期电话隐藏

房源描述

业主电话:13331211405

房子是跃层,毛坯房本满2年了,税费低,单价低,地理位置佳,交通方便,
联系我时,请说是在定房汇上看到的。

地理位置

推荐二手房更多

总共执行时间 0.0625029